Stadt Rheinfelden

Einwohnerzahl: > 30.000
Auftragsart: Schulraumentwicklung, Zusammenlegung
Schulformen: Grundschule (OGS), Sek I & Sek II, Förderschulen
Anzahl Schulen: 13
Stadt Rheinfelden Schule

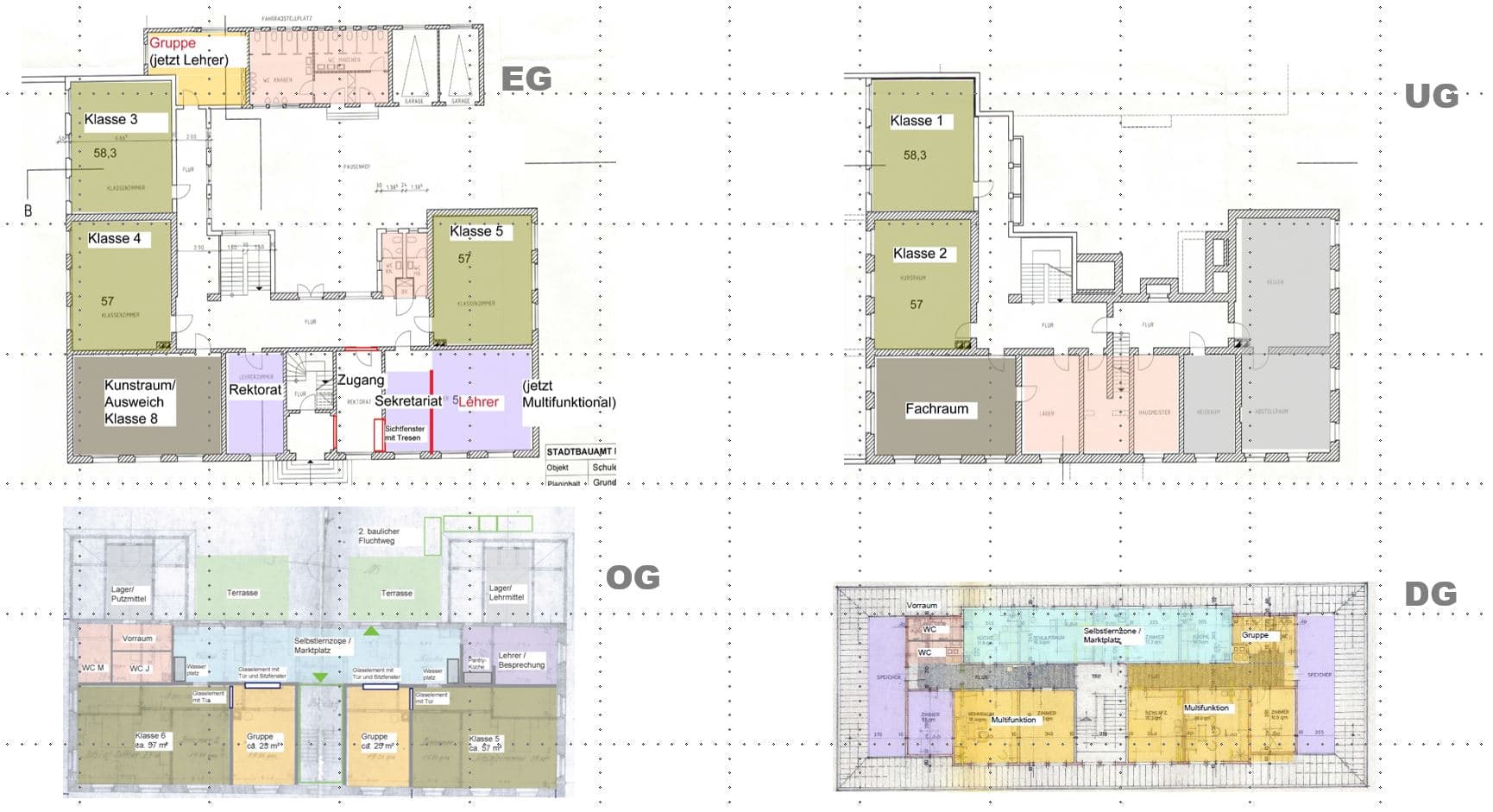
Erstellung einer Schulraumentwicklungsplanung für die gesamte Schullandschaft der Stadt Rheinfelden bestehend aus 9 Grundschulen, einer Gemeinschaftsschule, einer Realschule, einem Gymnasium und einem SBBZ (Schule mit sonderpädagogischem Schwerpunkt Lernen)

Ansprechpartnerin: Fr. Hünerli der Stadtverwaltung Rheinfelden
Bearbeitungszeitraum: 01/2020- 12/2020

Bestandteile der Arbeit waren u.a.:

  • Erstellen von Schülerzahlenprognosen (standortgenau) in Zusammenarbeit mit unserem Partner SAGS Augsburg
  • Analyse der Ganztagskonzepte, – Gespräche und Workshops mit den Schulfamilien, – Erstellen von Ist / Soll – Analysen für jede Schule
  • Ermittlung des baulichen und räumlichen Bedarfs jeder Schule in Abhängigkeit zur Gesamtentwicklung
  • Erstellung eines übergeordneten Maßnahmenkonzeptes
  • Untersuchung von möglichen Synergien zwischen den Schulen oder Schulzusammenlegungen